home    •     summary    •     associations    •     references    •     portfolio    •     about    •     disclaimer

portfoliocollegiate • Recreation and Athletic Center • 4-10

<<  <  >  >>

Recreation and Athletic Center

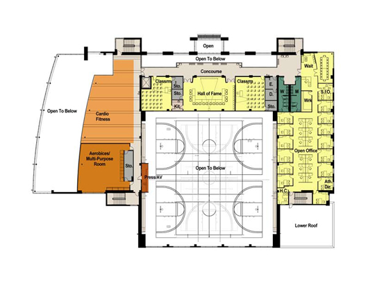
Donae College - Crete NE

Doane College, Recreation & Athletic Center - Upper Level Plan
©HCA - Revit
Johnathan E. Ruder, AIA    14236 Reelfoot Lake Drive    Chesterfield    Missouri    63017    314-504-4168    jeruder@charter.net    copyright 2018